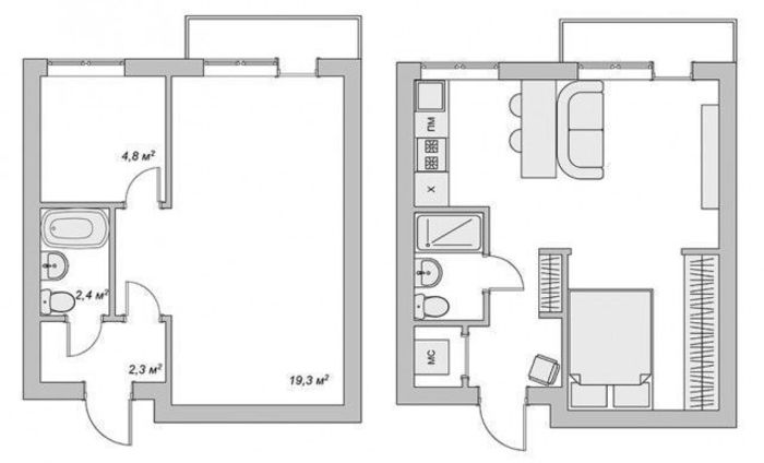
Изначально квартира имела совсем другую планировку.

Она была поделена на маленькую кухню (4,8 кв. м), проходную жилую комнату (19,3 кв. м) и крошечный санузел (2,4 кв. м), дверь которого открывалась в прихожую (2,3 кв. м), не давая разместить в ней даже небольшой шкаф для одежды.

Все внутренние перегородки в квартире оказались ненесущими, это дало простор для новой, студийной планировки. Объединили кухню и комнату, но выделили зону для спальни с большим встроенным гардеробом.
Спальню решили изолировать от общего пространства, задернув декоративную штору.
Диванная зона отделена от кухни барной стойкой, которая выполняет функции обеденного, фуршетного и рабочего стола.
Вход в санузел перенесли. За счет этого удалось рационально организовать пространство помещения. В коридоре теперь нашлось место для шкафа и кресла.
Там же сделали подсобный шкаф со стиральной машиной и дополнительными местами для хранения.
Что позволило освободить ванную от лишних хозяйственных предметов.


Главной проблемой стали расчеты и соблюдение размеров. Проектировка потребовала точности, ведь ошибка всего в 5 мм могла привести, к тому, что в ванной комнате не поместились бы унитаз, раковина или душевая кабина.
Оформление
Все цвета в интерьере перекликаются между собой – оттенки серого и бежевого, черный, белый, серебряный, золотой, шампань.
Необходимый контраст задают аксессуары: чугунные радиаторы графитного цвета и черная кухонная мебель, украшенная сусальным золотом.
Кухня-гостиная



Спальня
Имеется встроенный шкаф. На полу использован тот же паркет, что и в гостиной.

Санузел
Решение для санузла предполагалось максимально легкое и ненавязчивое, поэтому, чтобы пространство не выглядело скучным, добавлены черные акценты.


Коридор
В коридоре пол выложен метлахской плиткой, элементы из плитки разного размера собраны в геометрический рисунок, перекликающийся с полом в санузле, плиткой на кухне и цветовым решением интерьера в целом. Встроенный шкаф решает проблему хранения.


Исоточник